全国 田舎暮らし物件 > 群馬県 > 上州の閑静な新興住宅地に佇む、令和4年築の吹き抜けログハウス
群馬県 桐生市 [住宅]
物件No.18286T
上州の閑静な新興住宅地に佇む、令和4年築の吹き抜けログハウス4300万円
この物件について問い合わせるしつこい営業は一切致しませんので、安心してお問い合わせください。
現地へのご案内や、ネットでは公開していない詳細情報をお知らせします。
現地へのご案内や、ネットでは公開していない詳細情報をお知らせします。
北関東外環を走る国道50号線沿いは、その交通量の多さから商業施設が賑わいを見せる地域で、車社会の桐生市では国道近くの宅地は根強い人気を誇っている。そんな国道から少し離れた農村風景が広がる閑静な環境で、近年宅地分譲が行われた新しい分譲地に佇むログハウスが今回の物件。建物はまだ築3年の真新しいおしゃれな外観で、車高に余裕のある電動シャッターのガレージと、天井まで吹き抜けの開放感のある室内、一目を気にせずくつろげるデッキ付きの庭園スペースが自慢だ。駅・買い物・教育施設・病院等も徒歩圏内に点在し、アクセスの良さと閑静な環境を求める方にはぴったりの物件だ。
【オンライン見学はこちらから】
→ここをクリック
| 物件No. | 18286T |
|---|---|
| 所在地 | 群馬県桐生市広沢町2丁目字中島前 |
| 種別 | 住宅 |
| 地目 | 宅地、宅地、公衆用道路 |
| 地勢 | 平坦地 |
| 土地面積 | 555.35㎡ (167.99坪) |
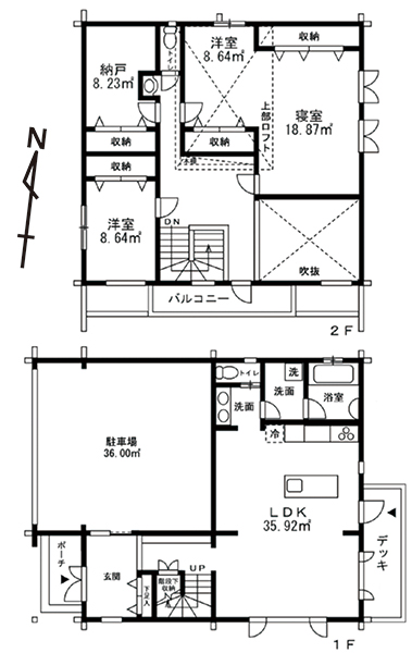
| 建物面積 | 167.7㎡ (50.72坪) |
| 建物構造 | 木造合金メッキ鋼板ぶき2階建 |
| 築年 | 令和4年 |
| 床面積1階 | 94.2㎡ (28.49坪) |
| 床面積2階 | 73.5㎡ (22.23坪) |
| 接道状況 | 北側が幅約4.5mの舗装公道に接する |
| 都市計画 | 区域内 市街化区域 |
| 用途地域 | 第一種住居地域 |
| 建ぺい率 | 60% |
| 容積率 | 200% |
| 法令 | 桐生市景観条例 |
| 標高 | 111m |
| 設備 | 電気、公営水道、公共下水、都市ガス |
| 交通 | 東武桐生線新桐生駅より約900m、阿左美駅より約1.2km、両毛線岩宿駅より約3.4km、北関東道太田藪塚ICより約7.5km |
| 生活 | スーパーフレッセイへ約1.8km、ローソンへ約550m、クリニックへ約500m、神明小へ約850m、桜木中へ約1km、市役所へ約2.6km |
| 備考2 | 令和7年度固定資産税141,700円、都市計画税40,700円。公衆用道路の共有持分は3分の1。 |
情報更新日:2025/12/15
この物件について問い合わせる
しつこい営業は一切致しませんので、安心してお問い合わせください。
現地へのご案内手配や、ネットでは公開していない詳細情報・ご質問事項をお答えいたします。
(※ご見学前に特別にお送りする資料等はご用意しておりませんのでご了承ください)
現地へのご案内手配や、ネットでは公開していない詳細情報・ご質問事項をお答えいたします。
(※ご見学前に特別にお送りする資料等はご用意しておりませんのでご了承ください)
※掲載されている図面・データが現況と異なる場合は、現況を優先します。

























































