全国 田舎暮らし物件 > 埼玉県 > 高台に位置する別荘地皆野の町を見下ろす物件
埼玉県 皆野町 [住宅]
物件No.18305A
高台に位置する別荘地皆野の町を見下ろす物件240万円
この物件について問い合わせるしつこい営業は一切致しませんので、安心してお問い合わせください。
現地へのご案内や、ネットでは公開していない詳細情報をお知らせします。
現地へのご案内や、ネットでは公開していない詳細情報をお知らせします。
埼玉県の北西部にある皆野町は山々に囲まれ町の中心を荒川が流れる美しい町だ。季節事に咲き誇る花々や秩父音頭の発祥の地としても知られ自然や文化を活かし観光面でも発展している。物件は美の山登山沿いの別荘地内に建つ。3階建ての建物に開放感のあるバルコニー、外観も去年塗装したばかりで室内室外共に状態が非常に良く現状のままですぐに仕様が出来る。インテリアとしても人気の薪ストーブも付いており炎のゆらぎによる癒しを感じて欲しい。登山道路を降りれば1キロ程でスーパーや飲食店に行ける立地も魅力である。別荘利用としてだけでなく定住も視野に入れても良いだろう。
【オンライン見学はこちらから】
→ここをクリック
| 物件No. | 18305A |
|---|---|
| 所在地 | 埼玉県秩父郡皆野町皆野時ヶ小根 |
| 種別 | 住宅 |
| 地目 | 山林 |
| 地勢 | 傾斜地 |
| 土地面積 | 140㎡ (42.35坪) |
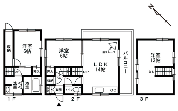
| 建物面積 | 83.34㎡ (25.2坪) |
| 建物構造 | 木造スレート葺3階建 |
| 築年 | 平成7年 |
| 床面積1階 | 23.73㎡ (7.17坪) |
| 床面積2階 | 39.74㎡ (12.02坪) |
| 床面積3階・その他 | 19.87㎡ (6.01坪) |
| 接道状況 | 南東側が幅約4mの舗装私道に接する |
| 都市計画 | 区域外 |
| 用途地域 | 無指定地域 |
| 法令 | 宅地造成等規制法 |
| 標高 | 352m |
| 設備 | 電気、井戸、単独浄化槽、PG |
| 交通 | 秩父鉄道秩父本線皆野駅より約1.8km、皆野寄居有料道路皆野大塚ICより約5.7km |
| 生活 | ヤオコーへ約2.4km、セブンイレブンへ約1.6km、病院へ約1.8km、梵の湯へ約2.8km、道の駅みなのへ約3.0km、役場へ約1.9km |
| 備考2 | 自治会費、年3万円(水とか全部含めて)、自主管理のため管理費はなし |
情報更新日:2025/12/16
この物件について問い合わせる
しつこい営業は一切致しませんので、安心してお問い合わせください。
現地へのご案内手配や、ネットでは公開していない詳細情報・ご質問事項をお答えいたします。
(※ご見学前に特別にお送りする資料等はご用意しておりませんのでご了承ください)
現地へのご案内手配や、ネットでは公開していない詳細情報・ご質問事項をお答えいたします。
(※ご見学前に特別にお送りする資料等はご用意しておりませんのでご了承ください)
※掲載されている図面・データが現況と異なる場合は、現況を優先します。



































