全国 田舎暮らし物件 > 埼玉県 > 二階からの眺望が美しい農地と山林付きの物件
埼玉県 小鹿野町 [住宅]
物件No.18267A
二階からの眺望が美しい農地と山林付きの物件980万円
この物件について問い合わせるしつこい営業は一切致しませんので、安心してお問い合わせください。
現地へのご案内や、ネットでは公開していない詳細情報をお知らせします。
現地へのご案内や、ネットでは公開していない詳細情報をお知らせします。
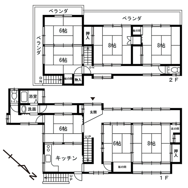
小鹿野町は歌舞伎の町として知られ数々の歌舞伎ファンから愛されている。物件は人気の道の駅『両人温泉薬師の湯』から近い。7部屋と部屋数が多いのは大家族には魅力的だ。この物件は2階バルコニーからの眺望が良く秩父の澄み渡った山々が並ぶ。美しい景色を是非楽しんで頂きたい。現在は故障をしているが井戸もあり魚を飼う方は良好な水での飼育ができる。物件の近くには畑と山林もある。畑ではサツマイモやネギを育てるも良し。山林ではシイタケを育てるも良し。庭で採った野菜と秩父のお肉で家族団欒でバーベキューをするのは最高だ。この物件であなたは楽しい日々を送れる事だろう。
| 物件No. | 18267A |
|---|---|
| 所在地 | 埼玉県秩父郡小鹿野町飯田幅ノ上 |
| 種別 | 住宅 |
| 地目 | 宅地、畑、山林 |
| 地勢 | 平坦地 |
| 土地面積 | 1589.72㎡ (480.89坪) |
| 建物面積 | 184.21㎡ (55.71坪) |
| 建物構造 | 木造亜鉛メッキ鋼板葺2階建 |
| 築年 | 昭和48年 |
| 改築年 | 昭和57年 |
| 床面積1階 | 102.89㎡ (31.12坪) |
| 床面積2階 | 81.32㎡ (24.59坪) |
| 接道状況 | 北西側が幅約3.5mの舗装公道に接する |
| 都市計画 | 区域内 非線引区域 |
| 用途地域 | 無指定地域 |
| 建ぺい率 | 70% |
| 容積率 | 200% |
| 法令 | 農振法(青地)、農地法、埼玉県景観区域 |
| 標高 | 292m |
| 設備 | 電気、公営水道、合併浄化槽、PG |
| 交通 | 秩父鉄道秩父駅より約15.3km、上里サービスエリアより約40.7km |
| 生活 | ラコマートへ約2.7km、セブンイレブンへ約2.6km、病院へ約3.1km、コメリへ約2.4km、薬師の湯へ約4.5km、小鹿野郵便局へ約3.6km |
情報更新日:2025/12/15
この物件について問い合わせる
しつこい営業は一切致しませんので、安心してお問い合わせください。
現地へのご案内手配や、ネットでは公開していない詳細情報・ご質問事項をお答えいたします。
(※ご見学前に特別にお送りする資料等はご用意しておりませんのでご了承ください)
現地へのご案内手配や、ネットでは公開していない詳細情報・ご質問事項をお答えいたします。
(※ご見学前に特別にお送りする資料等はご用意しておりませんのでご了承ください)
※掲載されている図面・データが現況と異なる場合は、現況を優先します。






























