全国 田舎暮らし物件 > 山梨県 > 南アルプスの麓にある 森に包まれ静寂を楽しむ別荘
山梨県 武川町 [住宅]
物件No.18281Y
南アルプスの麓にある 森に包まれ静寂を楽しむ別荘 600万円
この物件について問い合わせるしつこい営業は一切致しませんので、安心してお問い合わせください。
現地へのご案内や、ネットでは公開していない詳細情報をお知らせします。
現地へのご案内や、ネットでは公開していない詳細情報をお知らせします。
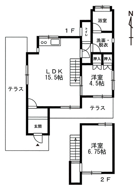
北杜市武川町は、南アルプスと八ヶ岳に抱かれた、大自然豊かなエリア。物件の近くには、日本三大桜として知られる神代桜、眞原の並木道などの桜の名所がある。また、ミネラル豊富な温泉や、幻のブランド米「農林48号」の生産地としても有名。本物件は、広域農道より200mほど入った場所の分譲地内。周囲は、10件ほどの別荘があり、定住者も点在している。建物は、平成2年築の2階建。室内は、勾配天井になっており、山小屋のような雰囲気。1階の15.5帖のLDKは、吹抜けになっており、2階はロフト部屋になっている。広々としたテラスは、食事やくつろぎの空間として活躍するだろう。水道は共有井戸。
| 物件No. | 18281Y |
|---|---|
| 所在地 | 山梨県北杜市武川町柳澤上原 |
| 種別 | 住宅 |
| 地目 | 山林 |
| 地勢 | 平坦地 |
| 土地面積 | 334㎡ (101.03坪) |
| 建物面積 | 58㎡ (17.54坪) |
| 建物構造 | 木造ガルバリウム合板葺2階建 |
| 築年 | 平成2年 |
| 床面積1階 | 40㎡ (12.1坪) |
| 床面積2階 | 18㎡ (5.44坪) |
| 接道状況 | 南側が幅約6m舗装私道に接する。 |
| 都市計画 | 区域外 |
| 建ぺい率 | 50% |
| 容積率 | 100% |
| 法令 | まちづくり条例、景観条令 |
| 設備 | 電気、共同井戸、単独浄化槽、PG |
| 交通 | 中央本線日野春駅より約8.1km、中央道須玉ICより約9.4km 車で18分 |
| 生活 | 武川総合支所へ約3.5km、スーパーへ約3.8km、小学校、郵便局、病院へ約3.9km、コンビニへ約4.9km、 |
| 備考2 | 建物未登記、共有井戸(4万円/年)、持分道路あり、 |
情報更新日:2025/12/16
この物件について問い合わせる
しつこい営業は一切致しませんので、安心してお問い合わせください。
現地へのご案内手配や、ネットでは公開していない詳細情報・ご質問事項をお答えいたします。
(※ご見学前に特別にお送りする資料等はご用意しておりませんのでご了承ください)
現地へのご案内手配や、ネットでは公開していない詳細情報・ご質問事項をお答えいたします。
(※ご見学前に特別にお送りする資料等はご用意しておりませんのでご了承ください)
※掲載されている図面・データが現況と異なる場合は、現況を優先します。






















