全国 田舎暮らし物件 > 北海道 > パイロット国道近くの住宅地、日当たりの良い庭付き住宅
北海道 弟子屈町 [住宅]
物件No.18289T
パイロット国道近くの住宅地、日当たりの良い庭付き住宅650万円
この物件について問い合わせるしつこい営業は一切致しませんので、安心してお問い合わせください。
現地へのご案内や、ネットでは公開していない詳細情報をお知らせします。
現地へのご案内や、ネットでは公開していない詳細情報をお知らせします。
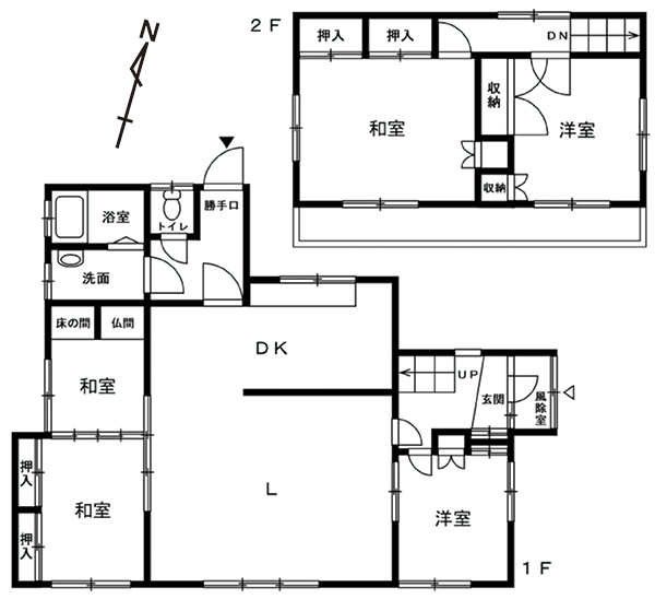
パイロット国道とは根室市と美幌町を結ぶ国道243号線を指し、沿道が近代的な酪農地帯(パイロットファーム)となっていることからこの愛称となった。美幌峠へ向かう観光客が多く通るこの国道から、脇に約130mほど入った閑静な住宅地にあるのが今回の物件。敷地は建物以外にも平坦な空き地がセットになっているため、広く有効活用することが出来、レイアウトの自由度は高い。建物は建築当時に流行した洋風でこだわりのある内装で、床の間や仏間のある和室とカーペットやフローリングの洋室もあって和洋折衷な住宅。現状空き家のため取得後に随所リフォームすることで、より快適に過ごせるだろう.。
【オンライン見学はこちらから】
→ここをクリック
| 物件No. | 18289T |
|---|---|
| 所在地 | 北海道川上郡弟子屈町摩周1丁目 |
| 種別 | 住宅 |
| 地目 | 宅地、宅地 |
| 地勢 | 平坦地 |
| 土地面積 | 976.26㎡ (295.31坪) |
| 建物面積 | 148.63㎡ (44.95坪) |
| 建物構造 | 木造亜鉛メッキ鋼板葺2階建 |
| 築年 | 昭和57年 |
| 床面積1階 | 112.18㎡ (33.93坪) |
| 床面積2階 | 36.45㎡ (11.02坪) |
| 接道状況 | 南東側が幅約11m、南西側が幅約7mの舗装公道に接する |
| 都市計画 | 区域内 非線引区域 |
| 用途地域 | 第一種住居地域 |
| 建ぺい率 | 60% |
| 容積率 | 200% |
| 法令 | 弟子屈町景観条例 |
| 標高 | 125m |
| 設備 | 電気、公営水道、単独浄化槽、PG |
| 交通 | 釧網本線摩周駅より約1.9km、道東道釧路西ICより約70km、中標津空港より約51.5km、女満別空港より約63.5km、釧路空港より約68.8km |
| 生活 | スーパーフクハラへ約550m、ローソンへ約450m、サツドラへ約270m、クリニックへ約900m、道の駅へ約1.1km、DCMニコットへ約600m、町役場へ約1.7km |
情報更新日:2025/12/15
この物件について問い合わせる
しつこい営業は一切致しませんので、安心してお問い合わせください。
現地へのご案内手配や、ネットでは公開していない詳細情報・ご質問事項をお答えいたします。
(※ご見学前に特別にお送りする資料等はご用意しておりませんのでご了承ください)
現地へのご案内手配や、ネットでは公開していない詳細情報・ご質問事項をお答えいたします。
(※ご見学前に特別にお送りする資料等はご用意しておりませんのでご了承ください)
※掲載されている図面・データが現況と異なる場合は、現況を優先します。



































