全国 田舎暮らし物件 > 静岡県 > 和の趣と現代的なデザインの融合清水の地に建つ洗練された空間
静岡県 静岡市 [住宅]
物件No.18291A
和の趣と現代的なデザインの融合清水の地に建つ洗練された空間5900万円
この物件について問い合わせるしつこい営業は一切致しませんので、安心してお問い合わせください。
現地へのご案内や、ネットでは公開していない詳細情報をお知らせします。
現地へのご案内や、ネットでは公開していない詳細情報をお知らせします。
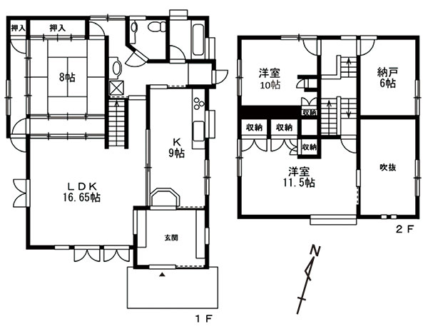
静岡市清水区は水揚げ日本一のマグロ、駿河湾で獲れるシラスや桜えびなど、海の幸の宝庫である。物件は清水区の南部に位置する庵原町に堂々と聳える。大工であった先代オーナー自ら作った唯一無二の物件だ。木視率の高い室内は温かみが感じられ手触り足触りがよく見た目のよい空間になっており細部までオーナーの拘りが見える面白い物件だ。約300坪の敷地に母屋、事務所、作業場、物置等が立ち家庭菜園スペースもある。事務所で事業を始めるも良し、作業場でDIYに打ち込むも良し、多岐にわたる仕様が出来そうだ。駅やICにもアクセスが良く都会過ぎず田舎過ぎない立地も魅力だ。
【オンライン見学はこちらから】
→ここをクリック
| 物件No. | 18291A |
|---|---|
| 所在地 | 静岡県静岡市清水区庵原町町屋 |
| 種別 | 住宅 |
| 地目 | 宅地、宅地、畑 |
| 地勢 | 平坦地 |
| 土地面積 | 1306.58㎡ (395.24坪) |
| 建物面積 | 153.69㎡ (46.49坪) |
| 建物構造 | 木造瓦葺2階建 |
| 築年 | 平成8年 |
| 床面積1階 | 153.69㎡ (46.49坪) |
| 接道状況 | 南側が幅約4mの舗装公道に接する |
| 都市計画 | 区域内 市街化調整区域 |
| 建ぺい率 | 60% |
| 容積率 | 200% |
| 法令 | 農地法、静岡市景観計画 |
| 設備 | 電気、公営水道、単独浄化槽、IH |
| 交通 | 東海道本線清水駅より約4.1km、東名高速道清水ICより約2.6km |
| 生活 | しずてつストアへ約4.6km、ファミリーマートへ約5.8km、病院へ約700m、コメリへ約17.7km、駿河健康ランドへ約6.1km、役場へ約5.1km |
| 備考 | 未登記の為、各階面積不明、付属建物:事務所97.51㎡(登記済)、物置16.52㎡、作業場①99.26㎡、作業場②26.40㎡(未登記) |
| 備考2 | 作業場のキッチンはプロパン |
情報更新日:2025/12/18
この物件について問い合わせる
しつこい営業は一切致しませんので、安心してお問い合わせください。
現地へのご案内手配や、ネットでは公開していない詳細情報・ご質問事項をお答えいたします。
(※ご見学前に特別にお送りする資料等はご用意しておりませんのでご了承ください)
現地へのご案内手配や、ネットでは公開していない詳細情報・ご質問事項をお答えいたします。
(※ご見学前に特別にお送りする資料等はご用意しておりませんのでご了承ください)
※掲載されている図面・データが現況と異なる場合は、現況を優先します。



























































