全国 田舎暮らし物件 > 広島県 > 穏やかな三篠川のそばに建つ田んぼのある4棟の民家住宅
広島県 広島市 [民家]
物件No.17396T
穏やかな三篠川のそばに建つ田んぼのある4棟の民家住宅350万円
この物件について問い合わせるしつこい営業は一切致しませんので、安心してお問い合わせください。
現地へのご案内や、ネットでは公開していない詳細情報をお知らせします。
現地へのご案内や、ネットでは公開していない詳細情報をお知らせします。
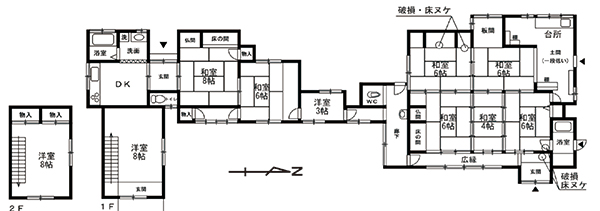
一級河川三篠川は広島市中心部へ流れる太田川の支流で、高低差も少ないため穏やかな川として親しまれている。そんな三篠川の土手近くにあるのが今回の物件で、南北に並列に4棟建物が並んでいるが、うち2棟は通り抜けが出来る構造のため、間取りは10DKととても広い。南側の平家建がメインの居住スペースで、水回り等もリフォームされているため快適に生活できる。北側の平家建は内外装ともに経年劣化が進行しているため、解体し更地後は駐車場等に転用した方が良いだろう。その隣の古民家は1階2階ともに物置小屋として使っているため、収納スペースにはかなりゆとりがあって使いやすそうだ。
【オンライン見学はこちらから】
→ここをクリック
| 物件No. | 17396T |
|---|---|
| 所在地 | 広島県広島市安佐北区白木町秋山字落尻 |
| 種別 | 民家 |
| 地目 | 宅地、田、田 |
| 地勢 | 平坦地 |
| 土地面積 | 3150.25㎡ (952.95坪) |
| 建物面積 | 52.89㎡ (15.99坪) |
| 建物構造 | 木造板葺平家建 |
| 築年 | 不詳 |
| 床面積1階 | 52.89㎡ (15.99坪) |
| 接道状況 | 西側が幅約2.7mの舗装公道に接する |
| 都市計画 | 区域外 |
| 法令 | 農地法、農振法(青地)、広島市景観条例 |
| 標高 | 110m |
| 設備 | 電気、公営水道、公共下水(農業集落排水)、PG |
| 交通 | 芸備線志和口駅より約1.5km、上三田駅より約2.6km、山陽新幹線広島駅より約29km、山陽道志和ICより約15.1km |
| 生活 | スーパーユアーズへ約1.5km、セブンイレブンへ約450m、病院へ約1.2km、ウォンツへ約1.4km、郵便局へ約1.2km、区役所白木出張所へ約1.4km |
| 取引形態 | 媒介 |
| 備考 | その他未登記附属建物として、木造平家建の住宅、木造平家建の古民家、木造2階建の倉庫の計3棟あり。 |
| 備考2 | 河川浸水想定区域(5.0-10.0m未満) |
情報更新日:2025/12/15
この物件について問い合わせる
しつこい営業は一切致しませんので、安心してお問い合わせください。
現地へのご案内手配や、ネットでは公開していない詳細情報・ご質問事項をお答えいたします。
(※ご見学前に特別にお送りする資料等はご用意しておりませんのでご了承ください)
現地へのご案内手配や、ネットでは公開していない詳細情報・ご質問事項をお答えいたします。
(※ご見学前に特別にお送りする資料等はご用意しておりませんのでご了承ください)
※掲載されている図面・データが現況と異なる場合は、現況を優先します。
















































