全国 田舎暮らし物件 > 北海道 > 摩周駅から約3.2km、国道に接する約5500坪の敷地に佇む事務所付き住宅
北海道 弟子屈町 [その他]
物件No.18236T
摩周駅から約3.2km、国道に接する約5500坪の敷地に佇む事務所付き住宅3150万円
この物件について問い合わせるしつこい営業は一切致しませんので、安心してお問い合わせください。
現地へのご案内や、ネットでは公開していない詳細情報をお知らせします。
現地へのご案内や、ネットでは公開していない詳細情報をお知らせします。
弟子屈町は、ひがし北海道の中央に位置し、町の65%以上が阿寒摩周国立公園をしめている大自然のまち。また摩周湖、屈斜路湖、硫黄山、川湯温泉などの観光名所もある。本物件は、国道243号線沿いにあり、周囲は住宅が一軒あるだけの静かな環境。南北に広がる開放感がある約5500坪の敷地に居宅と事務所兼居宅、倉庫、車庫がある林業会社の跡地。居宅は丁寧に使用されており、大きな手直しなく生活が出来る。また手入れし易い菜園スペースもあるのは嬉しい。トラックなどの大型自動車の通行や駐車ができるので、事務所や資材置場を探している方へオススメの物件。
| 物件No. | 18236T |
|---|---|
| 所在地 | 北海道川上郡弟子屈町字弟子屈 |
| 種別 | その他 |
| 地目 | 雑種地、雑種地、雑種地 |
| 地勢 | 平坦地 |
| 土地面積 | 18491㎡ (5593.52坪) |
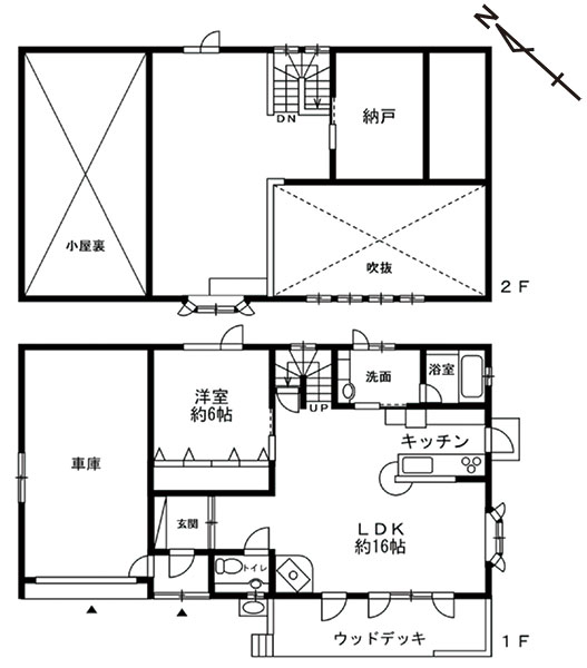
| 建物面積 | 150.7㎡ (45.58坪) |
| 建物構造 | 木造亜鉛メッキ鋼板葺2階建 |
| 築年 | 平成20年 |
| 床面積1階 | 103.92㎡ (31.43坪) |
| 床面積2階 | 46.78㎡ (14.15坪) |
| 接道状況 | 北西側が幅約10mの舗装公道に接する |
| 都市計画 | 区域外 |
| 法令 | 国土利用計画法、弟子屈町景観計画 |
| 標高 | 127m |
| 設備 | 電気、公営水道、簡易水洗(汲み取り)、PG |
| 交通 | 釧路本線摩周駅より約3.2km、道東道釧路東ICより約67.3km |
| 生活 | Aコープへ約3.5km、コンビニへ約4.2km、摩周厚生病院・役場へ約3.9km |
| 備考 | 居宅・事務所:木造亜鉛メッキ鋼板ぶき平家建89.43㎡ 平成30年8月築 |
| 備考2 | 固定資産税173,500円/年(R6年度)。ご契約は2階建て建物の所有者Aと、その他の建物と土地の所有者B、各所有者との別々の契約になります。ただし炭ガマは諸事情により売買対象外となります。 |
情報更新日:2025/12/12
この物件について問い合わせる
しつこい営業は一切致しませんので、安心してお問い合わせください。
現地へのご案内手配や、ネットでは公開していない詳細情報・ご質問事項をお答えいたします。
(※ご見学前に特別にお送りする資料等はご用意しておりませんのでご了承ください)
現地へのご案内手配や、ネットでは公開していない詳細情報・ご質問事項をお答えいたします。
(※ご見学前に特別にお送りする資料等はご用意しておりませんのでご了承ください)
※掲載されている図面・データが現況と異なる場合は、現況を優先します。

























